A14 Laperia | Guethary, 64249 | Rénovation et agrandissement d’une villa contemporaine |  2023




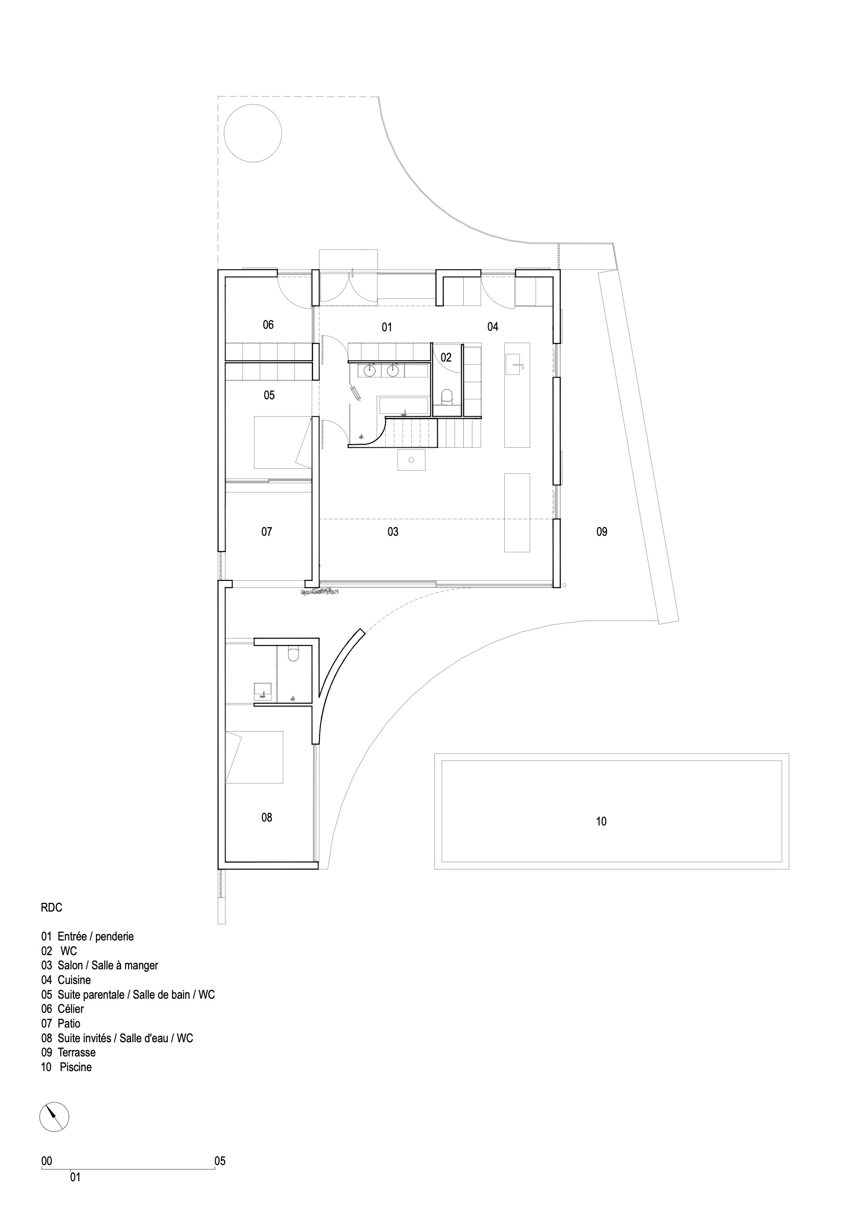
Le projet se présente comme une villa minimaliste entre Guethary et Bidart, Pays-basque, 64. Contrastant avec l’austérité sombre et chargée de l’architecture néo-basque populaire, notre intervention propose une relecture complète des espaces de la maison offrant des espaces lumineux favorisant simplicité, harmonie des matières et fonctionnalité,  dans une proposition d’architecture singulière et contemporaine.

Les continuités horizontales de sols et de plafonds allongent l’espace par un jeu subtil de matériaux. La pierre au sol est un enjeu majeur donnant à lire une douce ambiguïté d’usages.  La villa et le jardin se partagent la parcelle en vis-à-vis donnant à lire une transition douce d’espaces vers l’extérieur par la pierre et un jeu élégant de courbes.

La cuisine au cœur de la villa s’organise autour d’éléments simplement intégrés dans une juste esthétique fonctionnelle de volumes minimalistes, alors que le plan libre de la salle à manger et du salon ouvrent des espaces souples et généreux sur une baie vitrée panoramique spectaculaire.

Un style résolument minimaliste d’inspiration japonaise et espagnole, se joue des codes de l’architecture traditionnelle dans une austérité esthétique de matières et de lumières.


maîtrise d’ouvrage: privée
budget: non communiqué
surface: 196 m2
statut: études
Images: Rémi Lassauvetat