A13 Terrasse | Anglet, 64600 | Construction d’une villa contemporaine | 2023





La commande est une villa de bord de mer, au coeur de la forët de Chiberta entre golf et océan. 

La villa Terrasse est un vaisseau qui permet d'habiter et de faire l'expérience permanente d'un lieu ou d'un moment particuliers. Entre les pins élancés de son paysage, la villa agit à la fois comme un contenant d’expérience et objet conditionnant, conscient de son statut d'outsider face à la nature environnante et de l'héritage de ce paysage culturel.

Le projet établit une relation entre "le site et le modificateur", entre le lieu et l'objet, conçu pour permettre des lectures multiples, de l'extérieur et de l'intérieur. Réverbération de la typologie des maisons traditionnelles, la villa reprend l'ADN de la véranda dans une enveloppe étroitement contrôlée permettant aux espaces de vie et aux chambres de se projeter dans un espace extérieur couvert.

La base du projet est un parcours aérien face à l’océan reliée à un jardin épuré au cœur de la forët et à une façade protectrice coté rue qui ouvre les vues sur le jardin et l'horizon valloné du quartier de Chiberta.


maîtrise d’ouvrage: privée
budget: non communiqué
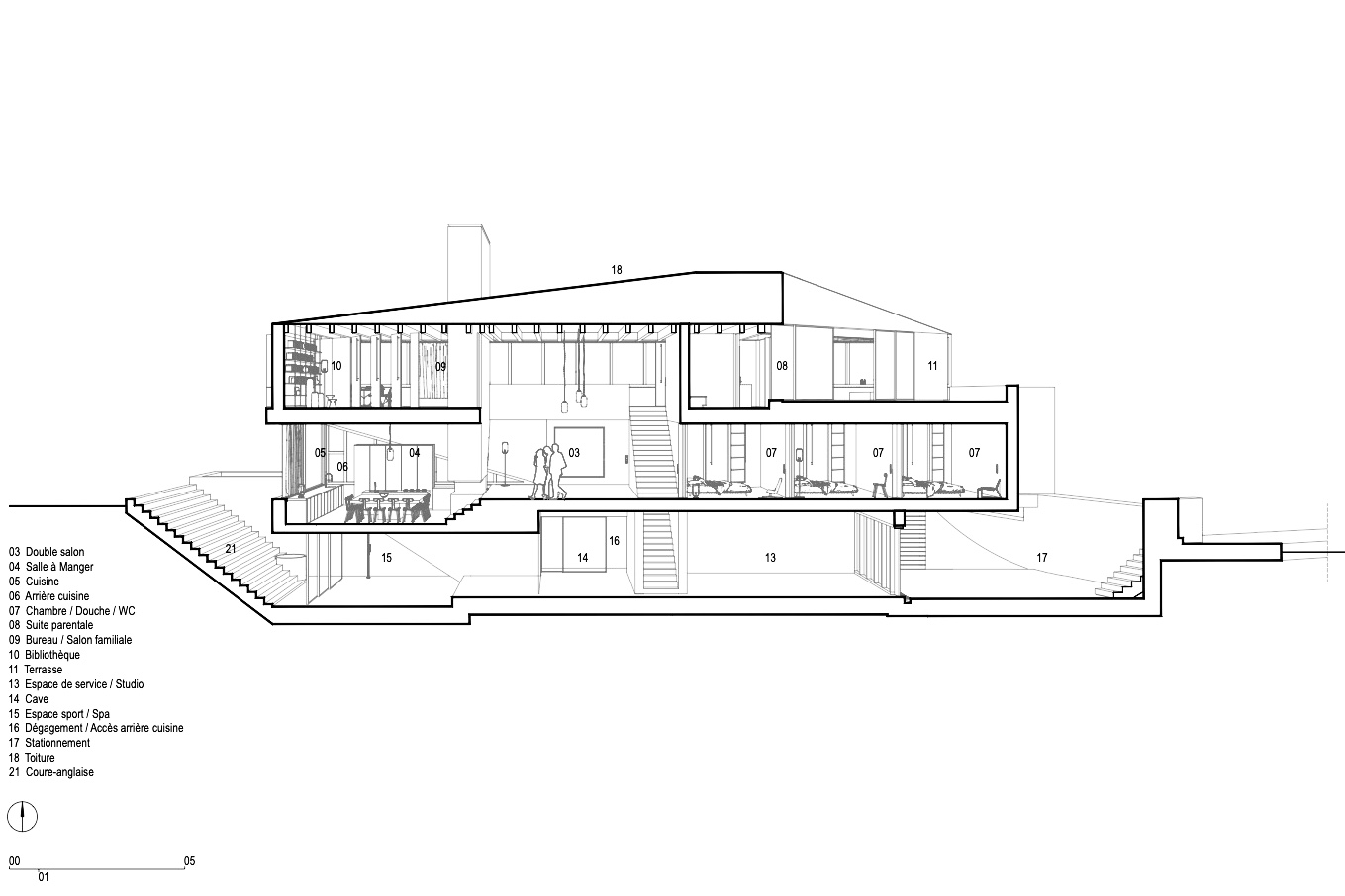
surface: 562 m2
statut: études
Images: rla_u